名古屋・金沢エリア

【2025年7月31日竣工】HirookaTerrace

【2025年7月31日竣工】HirookaTerrace
所在地 石川県金沢市広岡二丁目12番24号
竣工年月 2025年7月31日
規模 地上13階 塔屋1階
構造 地下:鉄筋コンクリート造、地上:鉄骨造(一部CFT造)
延床面積 21,466.68㎡(6,493.67坪)
基準階有効面積 782.16㎡(238.43坪)
基準天井高 2,800mm
OAフロア 有 100mm
空調方式 基準階:空冷式ヒートポンプパッケージエアコン+外調機
4・5階:ファンコイルユニット+外調機
EV台数 低階層用:3台(1〜5階)、高層階用:3台(4〜13階)、
非常用・人荷兼用:1台
駐車場 72台/駐輪場:有(バイクなし)
開閉館時間 平日8時~18時
コンセント容量 基準階専用部50VA/㎡
アクセス 金沢駅徒歩4分

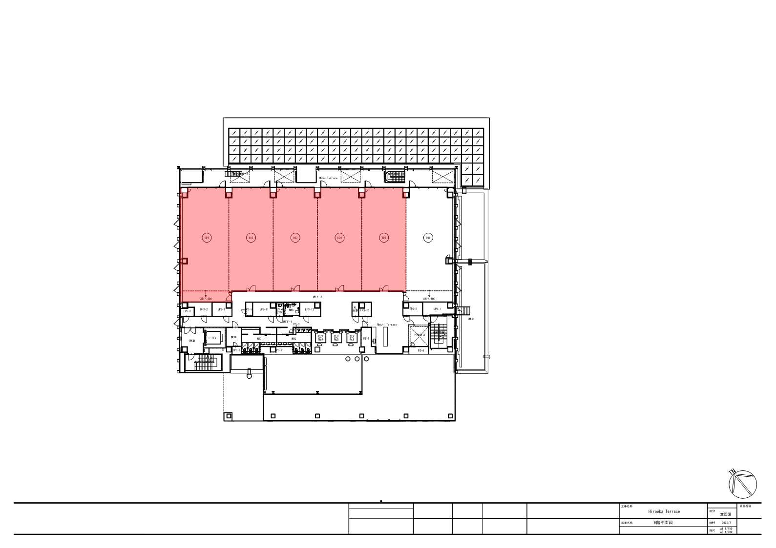
地上6階601区~605区

面積
633.14㎡(191.52坪)
貸付可能日
即日
用途
事務所

備考:内覧可(新築)
・各フロア共用部にラウンジ設置

地上6階601区~605区
この空室情報をPDFでダウンロード

当サイト内の文章・画像等の無断転載及び複製等の行為はご遠慮ください。

ページTOPへ