
| 所在地 | 東京都千代田区神田相生町1番地 |
|---|---|
| 竣工年月 | 2007年4月13日 |
| 規模 | 地上16階・地下2階・塔屋1階 |
| 構造 | 鉄骨造・一部鉄骨鉄筋コンクリート造 |
| 延床面積 | 13,848㎡ |
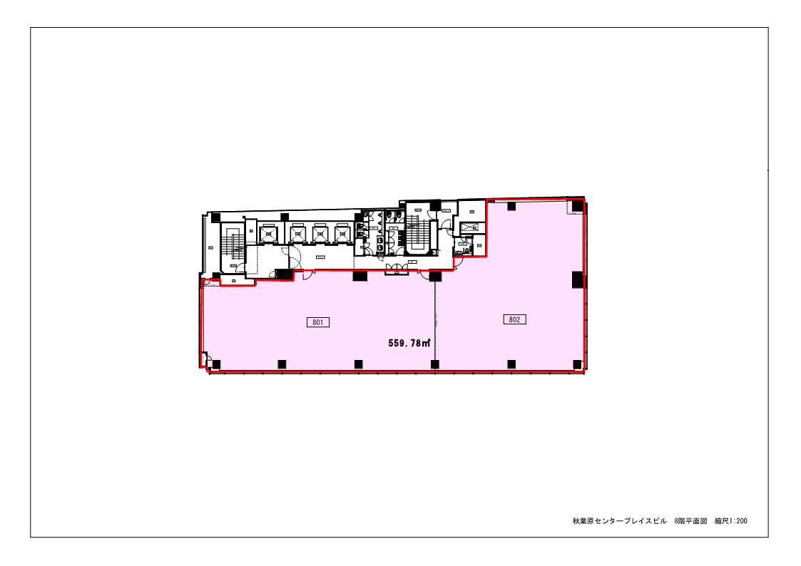
| 基準階有効面積 | 559.78㎡ |
| 基準天井高 | 2,700mm |
| OAフロア | 100mm |
| 空調方式 | 個別 |
| 警備形態 | 24時間有人管理 |
| EV台数 | 乗用3基、貨物用1基 |
| 駐車場 | 機械式42台 |
| 開閉館時間 | 平日8:00~20:00 土日祝9:00~21:00 |
| コンセント容量 | 50VA/㎡ |
| アクセス | JR秋葉原駅より徒歩1分 東京メトロ日比谷線秋葉原駅より徒歩3分 つくばエクスプレス秋葉原駅より徒歩1分 |
備考:内覧可(入居中)
当サイト内の文章・画像等の無断転載及び複製等の行為はご遠慮ください。