
| 所在地 | 東京都港区海岸一丁目2番20号 |
|---|---|
| 竣工年月 | 2007年12月1日 |
| 規模 | 地上24階・地下2階 |
| 構造 | 鉄骨造一部鉄骨鉄筋コンクリート造 |
| 延床面積 | 118,572.95㎡ |
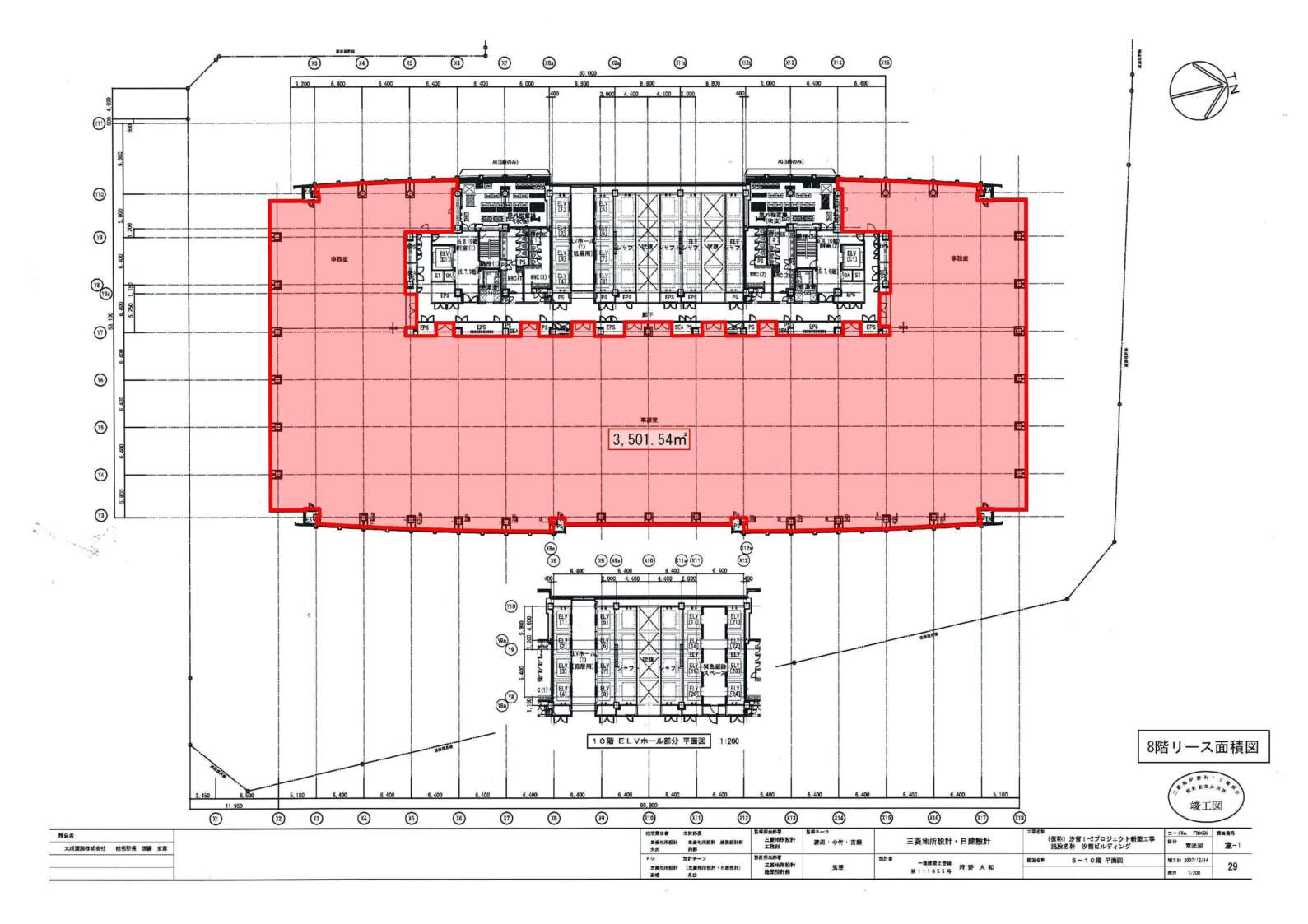
| 基準階有効面積 | 3,463.62㎡~3,709.67㎡ |
| 基準天井高 | 2,900mm |
| OAフロア | 100mm |
| 空調方式 | 個別空調 |
| 警備形態 | 24時間有人警備 |
| EV台数 | 乗用24基、貨物用2基、その他7基 |
| 駐車場 | 自走式83台、機械式176台 |
| 開閉館時間 | 平日7:00~20:00 |
| コンセント容量 | 60VA/㎡ |
| 備考 | RE100(再エネ100%)導入済 |
| アクセス | JR浜松町駅北口徒歩2分、都営地下鉄大江戸線大門駅より徒歩3分、都営浅草線大門駅より徒歩4分、東京モノレール浜松町駅より徒歩5分、ゆりかもめ竹芝駅より徒歩5分 |
備考:内覧可(入居中)
当サイト内の文章・画像等の無断転載及び複製等の行為はご遠慮ください。