
| 所在地 | 東京都千代田区丸の内3丁目4−2 新日石ビルヂング |
|---|---|
| 竣工年月 | 1981年7月 |
| 規模 | 地上11階・地下2階・塔屋1階 |
| 構造 | 鉄骨鉄筋コンクリート造 |
| 延床面積 | 26,565.60㎡ |
| 基準階有効面積 | 1,877.59㎡ |
| 基準天井高 | 2,490mm |
| OAフロア | 70mm |
| 空調方式 | セントラル空調 |
| 警備形態 | 有人管理(不在時遠隔管理) |
| EV台数 | 乗用6基、貨物1基 |
| 駐車場 | 平面駐車 |
| 開閉館時間 | 平日8:00~19:00、土曜8:00~17:00 |
| コンセント容量 | 40VA/㎡ |
| アクセス | JR「有楽町」駅、東京メトロ有楽町線「有楽町」駅より徒歩2分 |
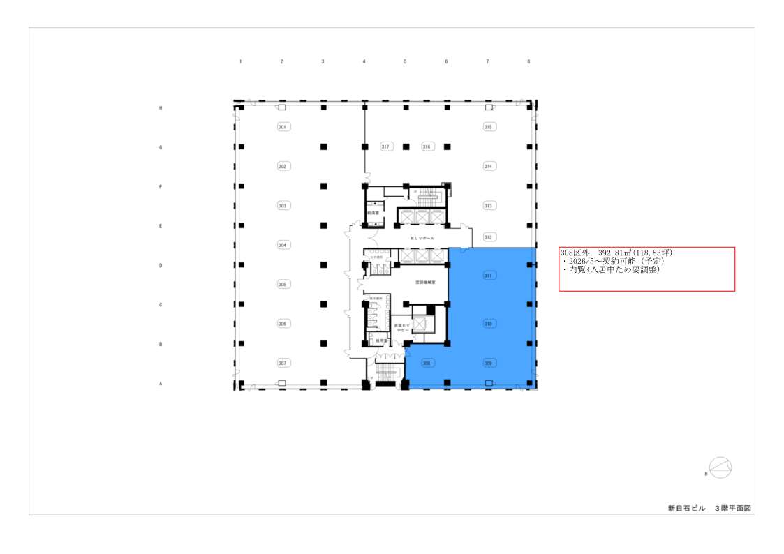
備考:内覧可(原状回復未了)
原状回復工事中のため、内覧につきましてはお問合せください。
当サイト内の文章・画像等の無断転載及び複製等の行為はご遠慮ください。