
| 所在地 | 石川県金沢市広岡二丁目12番24号 |
|---|---|
| 竣工年月 | 2025年7月31日 |
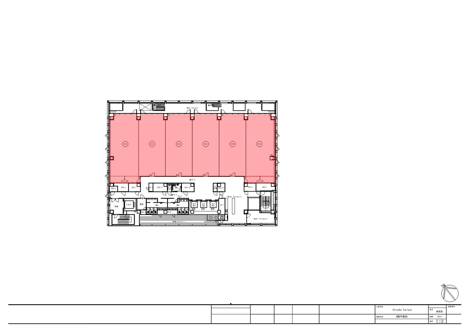
| 規模 | 地上13階 塔屋1階 |
| 構造 | 地下:鉄筋コンクリート造、地上:鉄骨造(一部CFT造) |
| 延床面積 | 21,466.68㎡(6,493.67坪) |
| 基準階有効面積 | 782.16㎡(238.43坪) |
| 基準天井高 | 2,800mm |
| OAフロア | 有 100mm |
| 空調方式 | 基準階:空冷式ヒートポンプパッケージエアコン+外調機 4・5階:ファンコイルユニット+外調機 |
| EV台数 | 低階層用:3台(1〜5階)、高層階用:3台(4〜13階)、 非常用・人荷兼用:1台 |
| 駐車場 | 72台/駐輪場:有(バイクなし) |
| 開閉館時間 | 平日8時~18時 |
| コンセント容量 | 基準階専用部50VA/㎡ |
| アクセス | 金沢駅徒歩4分 |
備考:内覧可(新築)
・各フロア共用部にラウンジ設置
当サイト内の文章・画像等の無断転載及び複製等の行為はご遠慮ください。