
| 所在地 | 石川県金沢市西念一丁目1番8号 |
|---|---|
| 竣工年月 | 2024年7月31日竣工 |
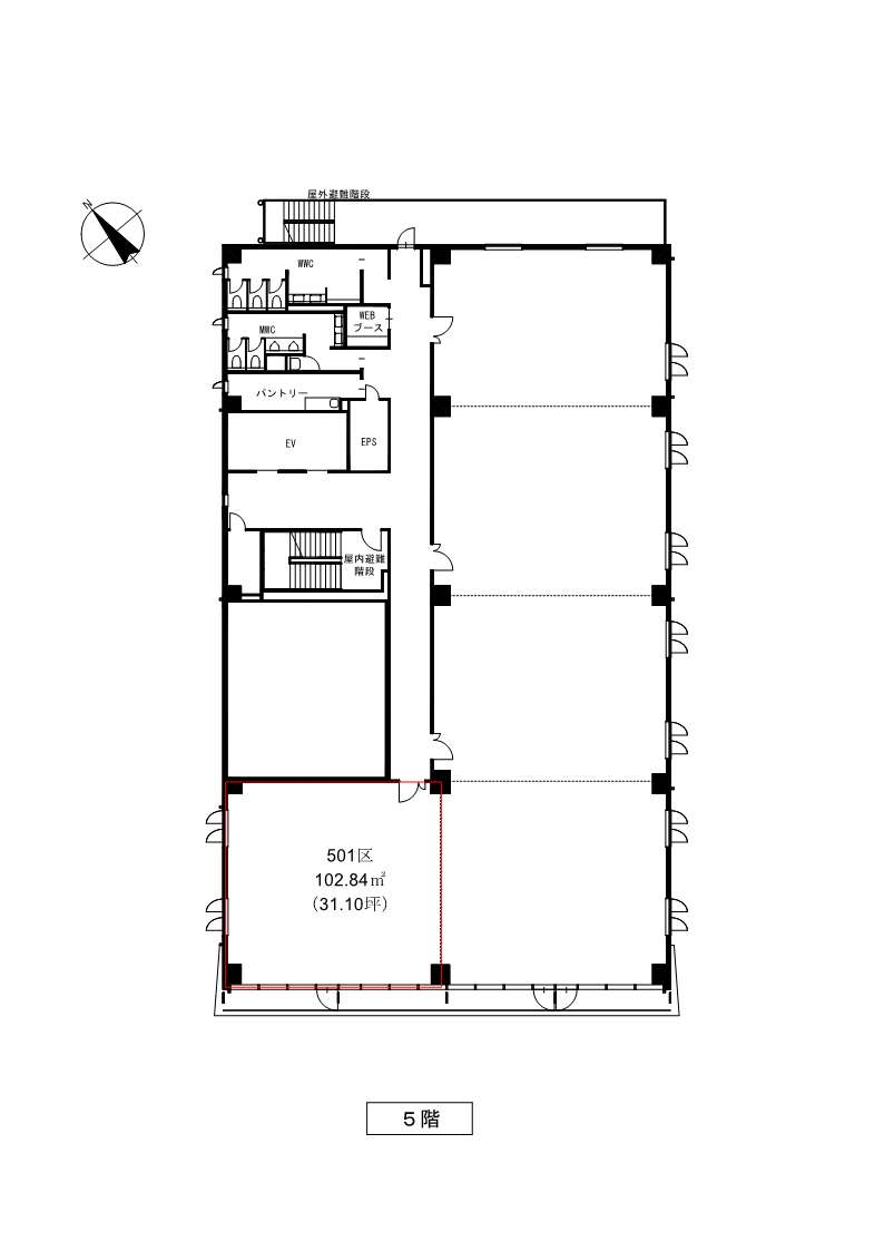
| 規模 | 地上9階 |
| 構造 | 鉄骨造 ※環境認証 ZEB Ready取得 |
| 延床面積 | 6,928.47㎡(2,095.9坪) |
| 基準階有効面積 | 499.47㎡(151.09坪) |
| 基準天井高 | 2,800㎜(OAフロア設置後) |
| OAフロア | 有 高さ100㎜ |
| 空調方式 | 個別空調 |
| 警備形態 | 機械警備 |
| EV台数 | 2基 |
| 駐車場 | 38台(内、2台ハイルーフ車) |
| 開閉館時間 | 8:00~19:00 |
| コンセント容量 | 75VA/㎡程度 |
| 備考 |
|
| アクセス | JR「金沢」駅より徒歩8分、北陸鉄道「広岡」バス停より徒歩3分 |
備考:内覧可(新築)
※原状で壁付コンセント設置、OAタップ引込済
当サイト内の文章・画像等の無断転載及び複製等の行為はご遠慮ください。